



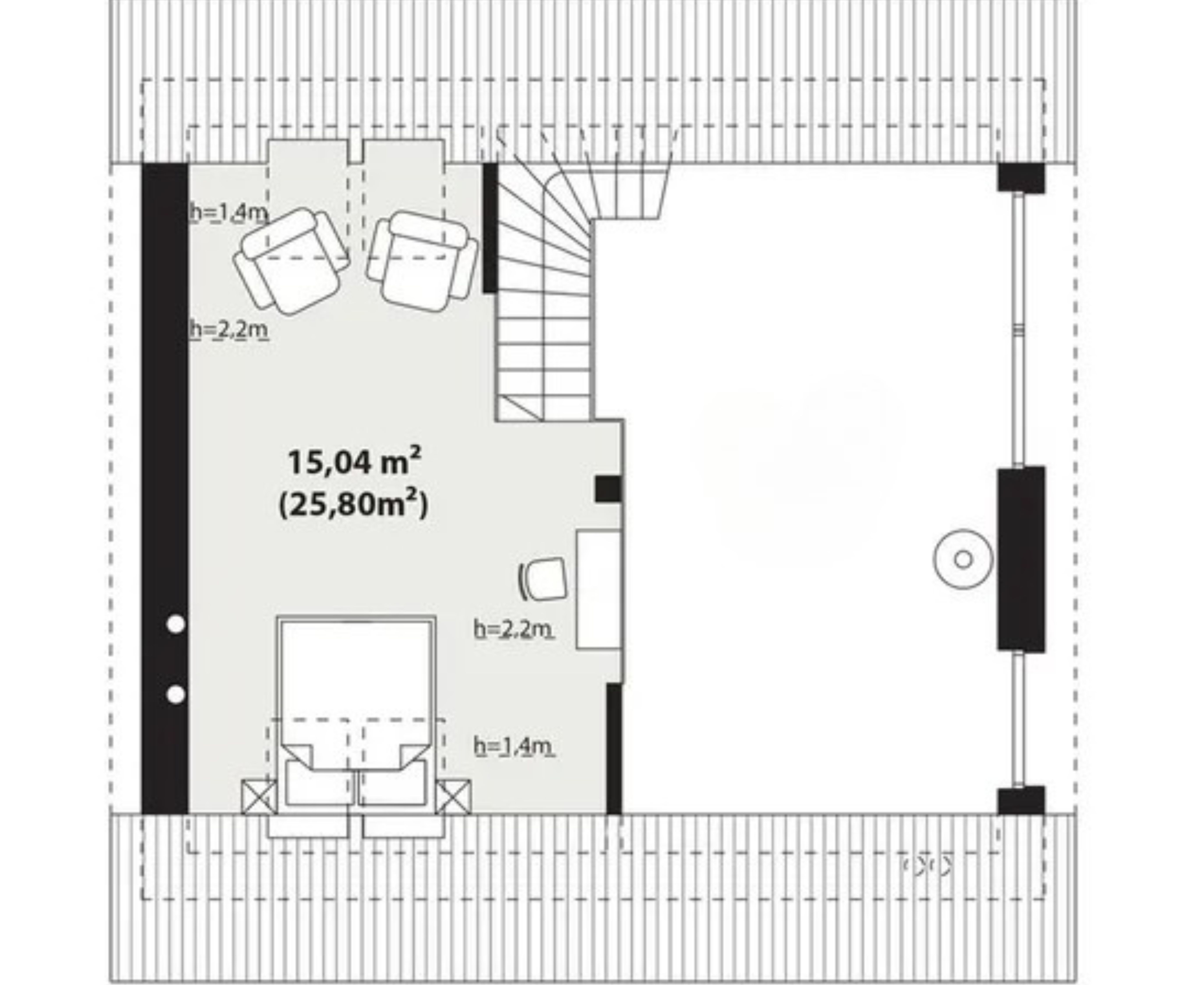
Nettó alapterület: 50 + 26 m²
Szobák száma: 3
Fürdőszobák száma: 2
Szerkezet: TÉGLA













Földmunka
Alapozás
Közműbekötések az alapba
Alap vízszigetelése
Falazás/faltechnológia építés
Födémszerkezet
Tetőszerkezet, fóliázás, lécezés
Tetőfedés
Bádogozás (ereszcsatornák)
Földmunka
Alapozás, lábazat, aljzatbeton
Külső teherhordó falak, válaszfalak
Tetőszerkezet, cserepezés, bádogozás
Homlokzatképzés kívül-belül
Kültéri és beltéri nyílászárók
Teljes gépészet és villanyszerelés
Hőszigetelés
Hideg- és melegburkolatok
Festés
Padlófűtéses fűtési rendszer
– választható: Hőszivattyú vagy Gázkazán
Szaniterek és szerelvények
-(Külön WC, törölközőszárítós radiátor, fürdőkád vagy zuhanyzó, csaptelepek)






Székhely: Kistarcsa
Telefon: +36 20/246-5366 | Polovics Mihály
E-mail: [email protected]


Székhely: Kistarcsa
E-mail: [email protected]
Telefon: +36 20/246-5366 | Polovics Mihály

Copyright: © 2025 Hardwork General Kft.
Minden jog fenntartva.